EDIFICIO MARINA


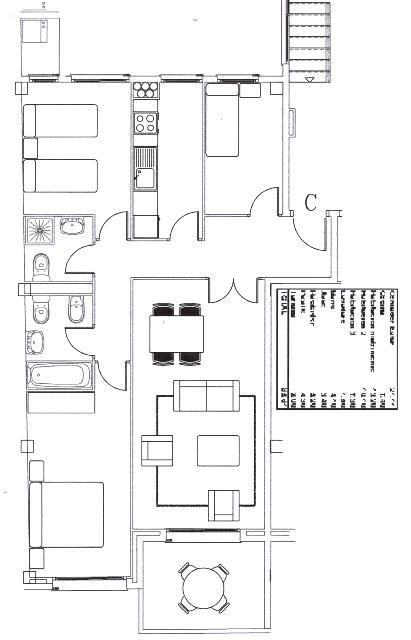
Piso de unos 86 m2 construidos, con terraza, cocina independiente y 2 baños, ubicado en la poblacion de Sant Carles de la Rapita. A solo 200 m. de las playas y del paseo de Sant Carles de la Rapita.

 

HAGA CLIC SOBRE LAS FOTOS PARA AMPLIARLAS

PRECIO:

189.000

Grupo Elimari España

902.107.051

info@elimari.ch

pisos de segunda mano : sant carles de la rapita, sant jaume d'enveja, alcanar

obra nueva : sant carles de la rapita, alcanar, sant jaume d'enveja, deltebre, playa eucaliptus

Grupo Elimari España SL todos los derechos reservados. Aviso Legal y Datos Empresa